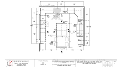
We personally conduct all field measurements to guarantee field fit, draft comprehensive construction plans and elevations in AutoCAD used for construction, and collaborate seamlessly with trusted partners to deliver high-quality 3D renderings when elevated visual content is required. This approach ensures meticulous attention to detail and sets us apart in providing exceptional service and results.
